當前位置:
門鎖網>
門鎖新聞>
門鎖知識>
詳情
手機版最新留言:
使用手機微信“掃一掃”功能,掃描以下二維碼,即可將本文分享到“朋友圈”中。
2021-08-11 編輯:中國門鎖網 來源:網絡 瀏覽數:6959
隨著Ola SN微信指紋鎖的銷售火爆,市場反饋也比較良好,但是也有一些問題,那就是在把智能鎖購買回家時不知道還怎么安裝。今天就是為大家送福利來了。本片文章就是分享Ola SN微信指紋鎖的安裝教程,其中...
隨著Ola SN微信指紋鎖的銷售火爆,市場反饋也比較良好,但是也有一些問題,那就是在把智能鎖購買回家時不知道還怎么安裝。今天就是為大家送福利來了。本片文章就是分享Ola SN微信指紋鎖的安裝教程,其中內含視頻!
第一步:確定原有門型是否符合安裝條件
需要伙伴們配合確認現有門型是否符合以下選項。
1、現有門型屬于室外門、防盜門。
2、門厚為45mm~110mm。
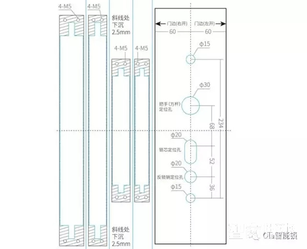
3、符合條件1、2后,請您提供以下數據(如下圖),
4、如果您現有的門厚符合條件1、2,但所提供的尺寸與Ola 產品安裝尺寸不符,同時您不介意重新打孔或擴孔,可按以下尺寸對現有門型進行打孔/擴孔
確定符合,收到產品后,可以按照接下來的安裝教程,安裝Ola SN微信指紋鎖
(提示:如您無法自行安裝,請您不用擔心,收到產品后可以聯系我們Ola團隊客服人員,客服人員會協助您尋找您當地鎖匠幫助您安裝,這將產生大約300元的安裝費用需要由您支付)
第二步:拆除舊鎖
需要您拆除原有門型鎖:鎖身、鎖芯、及鎖體。
(提示:門型鎖種類繁多,如您打算嘗試自行安裝Ola SN微信指紋鎖,并無法完成拆鎖操作,建議您咨詢專業鎖匠或您現款門鎖經銷商)。
第三步:安裝Ola SN微信指紋鎖
安裝Ola SN微信指紋鎖時請您開門安裝測試(切勿關閉房門安裝測試,防止未綁定,出現無法開門現像),安裝后殼面板:請先測試供電是否正常,確定無誤后在進行最后固定操作。
(點擊觀看完整安裝視頻)
全部步驟做完之后就可以盡情的使用智能鎖了,趕快體驗吧!還有什么疑問的話可進行在線留言或聯系客服!
想了解這個項目,請聯系我!
我想加盟,請將項目的資料發給我。
請問我所在地區有加盟商了嗎?
想了解此項目的加盟流程,請聯系我!
請問加盟此項目需投資多少錢?
版權與免責聲明:
凡未注明稿件來源的內容均為轉稿或由企業用戶注冊發布,本網轉載出于傳遞更多信息的目的,如轉稿涉及版權問題,請作者聯系我們處理。我們對頁面中展示內容的真實性、準確性和合法性均不承擔任何法律責任。
如內容信息對您產生影響,請及時聯系我們修改或刪除。
上一篇:換鎖芯多少錢 防盜門怎么換鎖芯
下一篇:變壓器防盜鎖怎么使用
13520832007

今天已經有 356 人獲取加盟資料
2025北京木門展,中國木門網采訪洛克曼智能鎖何總
2024門鎖網專訪凱理五金王總
2024門鎖網專訪三彪名派智能鎖黃總
隨著人工智能技術和物聯網技術的完善和普及,智能家居已經進入到千家萬戶,在消費升級背景下,智能門鎖已然成為智能家居市場的一大風口。
為了探尋飛利浦智能鎖的起步歷程和未來規劃,我們特地專訪了飛利浦銷售總監劉志丹先生,希望能夠找到飛利浦成功的奧義所在,為行業的良性發展帶來一些啟示和靈感。
中居聯杯·2024年度門鎖及智能鎖十大品牌獲獎名單
2024門業及定制家居品牌峰會暨中居聯杯·2023年度木門及門墻柜整裝十大品牌表彰盛典圓滿落幕
飛利浦智能鎖采用半導體指紋傳感器,識別靈敏度高,不僅能透過皮膚表皮層去采集更精細的指紋細節,還具備指紋認證修復功能。
隨著人們安全意識的不斷提高,家庭安防正在成為智能家居產品中日益崛起的一部分,其中涉及到的產品包括家用攝像機、智能門鎖、智能貓眼、智能門鈴、門磁傳感器、紅外報警器等等。據相關數據統計,家庭安防類設備在2...
CEEASIA亞洲三大專業消費電子展之一、一年一度的消費電子全產業鏈大會 —— CEEASIA亞洲消費電子展(北京)將于2022年6月25日-27日在中國北京亦創國際會展中心舉行。10月25日,中新展...
讓加盟更誠信 讓選擇更放心
立即咨詢做有權威的品牌